Este manual trata explica los conocimientos tecnológicos sobre el diseño hidráulico de estructuras hidráulicas, las cuales son de uso común en los proyectos de riego y drenaje, uso poblacional, generación de energía eléctrica, acuacultura, navegación, etc.
El manual de diseño de estructuras hidráulicas contiene los siguientes diseños.
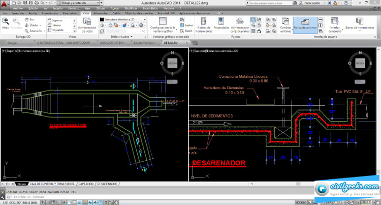
- Bocatoma
- Desarenadores
- Saltos de agua
- Rápidas
- Sifones
- Alcantarillas
- Acueductos
- Aforadores parshall
- Presas de embalse
- Hidráulica fluvial



Comments (11)
marcial - 5 agosto, 2014
Muy iteresante el documento gracias por haber publicado el mismo
IVAN - 13 octubre, 2014
ALGUNAS HOJAS ESTAN DAÑADAS
Fernando - 26 diciembre, 2015
Cual es el autor y los datos para poder citarlo?
Espero me puedan brindar esos datos, está muy interesante.
Muy buen aporte
JULIAN MEJIA Z - 22 julio, 2016
Como puedo tener acceso a la información, O COMO LO COMPRO
Florencio Norman - 3 agosto, 2016
Grandioso el manual gracias por el aporte……….
efrain - 9 septiembre, 2016
Buen libro
Luis - 19 enero, 2017
la mayoria de hojas se encuentran con las formulas borradas, que lastima
Angel - 29 octubre, 2017
quien es el autor de este manual????
Jhon Gesell - 29 noviembre, 2017
Muy amable gracias por compartir.
Horacio Pereira - 22 mayo, 2019
Gracias por tu aporte
Jorge - 17 noviembre, 2019
Buen aporte lastima que el PDF este mal creado o mal subido ya que salen formulas borradas y no se puede seguir la secuencia.